Stejně jako u skříní, tak i u kuchyní se snažíme, aby naše výrobky byly jednoduché na složení i montáž. Rozměry a uspořádání našich kuchyní vychází z dlouhodobých zkušeností při výrobě kuchyní na míru do rodinných domů i paneláků. Za hlavní výhodu našich kuchyní považujeme:
- odsazení spodních skříněk o 4cm od zadní stěny. Na stěně tedy mohou vést rozvody vody, odpadu atd. Boky skříněk není třeba vyřezávat, jak je tomu u jiných výrobců.
- skříňky jsou osazeny sololitovými zády o síle 3mm. Je-li třeba vyříznout záda, stačí Vám k tomu pilka.
- spodní i horní skříňky jsou osazeny rektifikačním kováním. Díky tomu je snadné srovnání skříněk do roviny.
- olepení skříněk polyuretanovým lepidlem, které odolává vlhkosti.
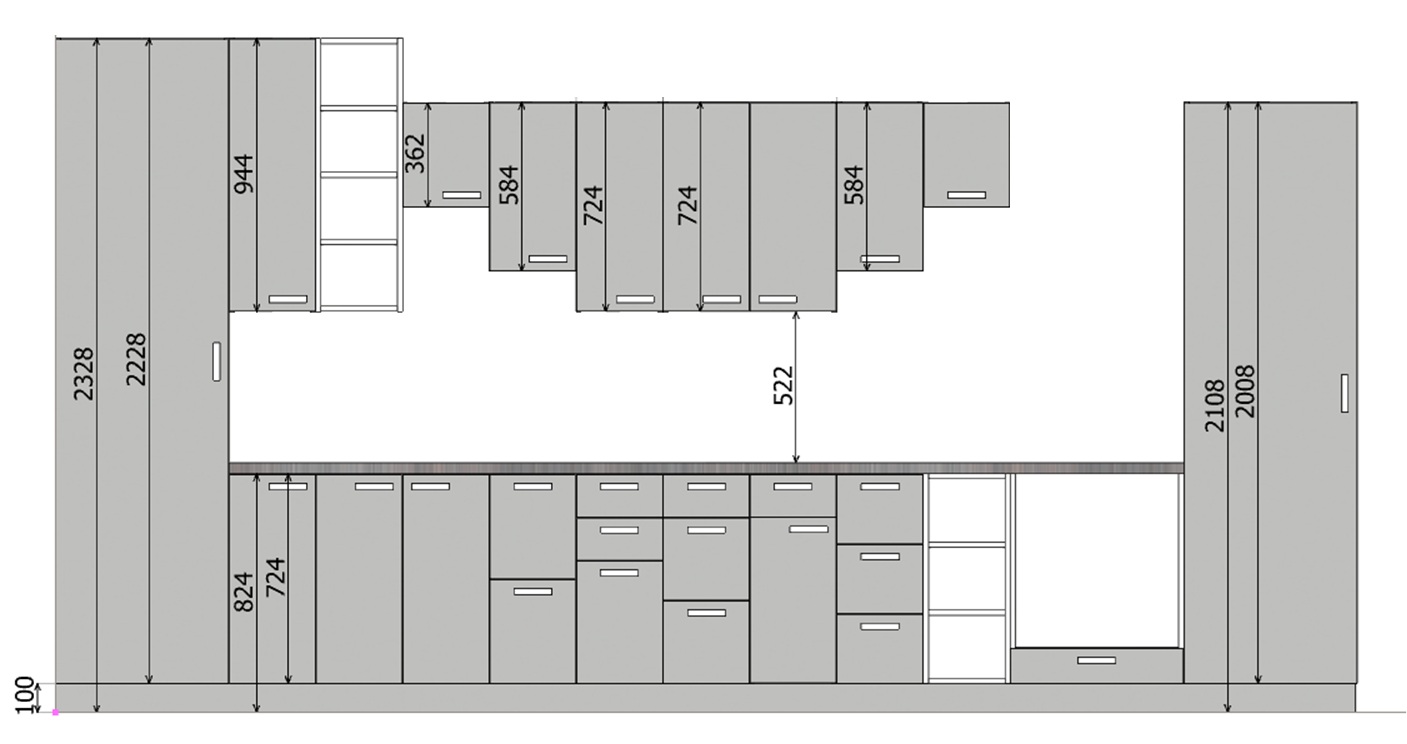
Rozměrová řada našich kuchyní:

Základní rozměry spodních skříněk:
Soklová noha Hettich: 100, nebo 120, 150mm s regulací +-20mm
Výška boků skříňky: 724mm
Hloubka skříňky: 520mm ( plus dvířka 18mm, takže za skříňkou zůstává cca 60mm místa na instalace elektřiny, odpadů atd.)
Šířka skřínky: 150-1000mm dle typu skříňky
Hloubka zásuvek Blum: 500mm
Základní rozměry vysokých skříněk:
Soklová noha Hettich: 100, nebo 120, 150mm s regulací +-20mm
Výška boků skříňky: 2008, nebo 2228 mm
Hloubka skříňky: 560mm
Šířka skřínky: 300 - 600mm dle typu skříňky
Hloubka zásuvek Blum: 500mm
Základní rozměry horních skříněk:
Výška boků skříňky: 724mm
Hloubka skříňky: 320mm
Šířka skřínky: 150-1000mm dle typu skříňky